El planteamiento inicial de vivienda presentado a continuación no corresponde a una oferta comercial definitiva. De esta manera, esta parte del proyecto aún está sujeta a modificaciones sin previo aviso.
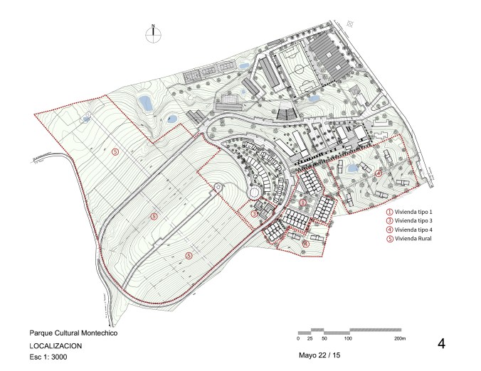
Como es conocido, el sector rural donde se ubica el proyecto está transformándose principalmente mediante conurbación a través de parcelaciones de vivienda. Los servicios planteados de salud, educación, recreación, etc., requieren una estabilidad importante que se logra mediante su interacción con proyectos residenciales permanentes que afiancen su vigencia. Ofrecemos por lo tanto diversos tipos de vivienda que puedan alojar tanto individuos como familias que conformen una agrupación afín a los servicios ofrecidos, enriqueciendo la habitabilidad del proyecto.
